Luckenwalde | Villa Rosa | 1999

Luckenwalde | Wohnungssanierung | 1999

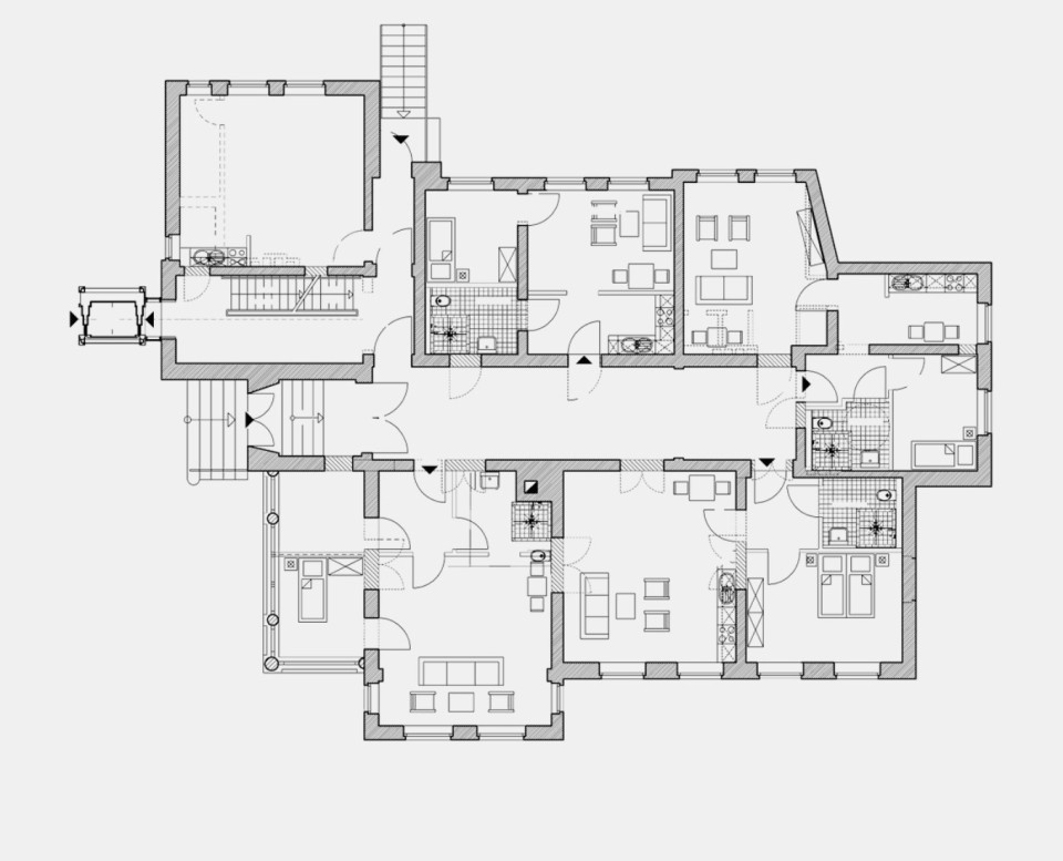
Was für ein Gebäude! Die Villa „Rosa“ in Luckenwalde wurde 1893 errichtet und zuletzt als Kinderhort genutzt. Das majestätische Gebäude gehört zu den prachtvollsten in der Stadt. Für Ganter Architekten war es eine besondere Herausforderung, an diesem Kleinod mitwirken zu dürfen und die Villa für ältere Menschen bewohnbar zu machen.

Durch die umfassenden Umbau- und Sanierungsmaßnahmen entstand ein Wohngebäude mit sieben Kleinwohnungen für betreutes Wohnen im Alter. Die Fassaden haben wir aufwendig restaurieren und das Gebäude behutsam durch Anbauten ergänzen lassen.

Das Raumangebot umfasst nun neben den Wohnungen auch Gemeinschaftsräume, einen Gymnastikraum und weitere Nebenräume. Um die geforderte Barrierefreiheit zu realisieren, haben wir das Treppenhaus an der Giebelseite durch einen vollständig verglasten Aufzug erweitert.

 
 
Luckenwalde | Villa Rosa | 1999
 
 
Luckenwalde | Villa Rosa | 1999
 
 
Luckenwalde | Villa Rosa | 1999
Weitere Referenzen