01.10.2023 | Natur-Park-Stadt
  • Standort
    Rüdnitzer Straße, 16359 Biesenthal
01.10.2023 · Wohnen in der Naturpark-Stadt

Planung einens Wohnkomplexes mit insgesamt 114 Wohnungen

Wohnen in der Natur und dennoch mit guter Anbindung an die Metropole Berlin. Den Wunsch vieler Menschen, die dem Trubel des Stadtlebens entkommen wollen, können wir mit unserem neuen Wohnbauprojekt „Biesenthaler Grund“ erfüllen. Der Trend der Landlust verstärkt sich vor allem im Umfeld Berlins – das macht unser Projekt besonders interessant.

Am Rande des Stadtparks der Naturparkgemeinde Biesenthal im begehrten Speckgürtel Berlins planen wir einen Wohnkomplex mit insgesamt 114 Wohnungen in sechs Mehrfamilienhäusern. Dank der guten Anbindung über den Biesenthaler Bahnhof, aber auch durch schnelles Internet in der Gemeinde, verbindet sich hier der Wunsch nach Wohnen im Grünen mit den vielfältigen Möglichkeiten der Großraummetropole Berlins.

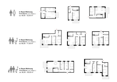
Die modernen, hellen und effizient geschnittenen 2- bis 4-Raum-Wohnungen mit markt- und preisorientierten Grundrissen eignen sich für Paare, Singles oder Familien mit Kindern. Zu jeder Wohnung gehört ein großzügiger Balkon oder eine Terrasse innerhalb des aufwendig begrünten Umfelds.

Besonderes Augenmerk hat unser Architekturbüro auch hier auf Energieeffizienz gelegt. Die Häuser werden mit vorbildhafter Ausstattung der Gebäudehülle und modernster Haustechnik als Effizienzhaus 40 gebaut und können mit dem Qualitätssiegel „Nachhaltiges Gebäude“ zertifiziert werden. Wärmepumpen und Photovoltaik ergänzen die in Teilen in Holzrahmenbauweise gebauten Gebäude, die sich damit gut in die Natur und das Leitbild der Naturparkstadt Biesenthal einfügen.

 
 
01.10.2023 | Natur-Park-Stadt
 
 
01.10.2023 | Natur-Park-Stadt
 
 
01.10.2023 | Natur-Park-Stadt
 
 
01.10.2023 | Natur-Park-Stadt
Weitere Beiträge